hero-image-0

Packard-1590 BECKWORTH LN

By

Express Homes

   |   

Creekstone

Creekstone
Sold
Sold
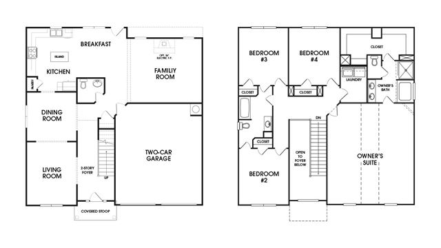
4
2
1
2,720
Packard-1590 BECKWORTH LN details
unit-banner-image
unit-banner-image
unit-banner-image
Packard-1590 BECKWORTH LN is now sold.
Check out available nearby homes below.