hero-image-0

1554 FARRELL LANE

By

Express Homes

   |   

Creekstone

Creekstone
Sold
Sold
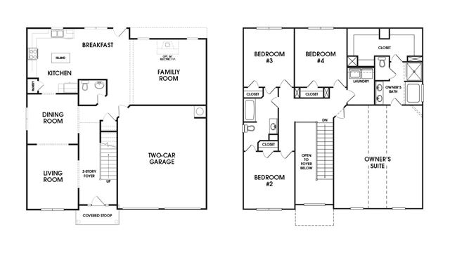
4
2
1
2,720
1554 FARRELL LANE details
unit-banner-image
unit-banner-image
unit-banner-image
1554 FARRELL LANE is now sold.
Check out available nearby homes below.