hero-image-0

11614 HATHAWAY DRIVE

By

Express Homes

   |   

Creekstone

Creekstone
Sold
Sold
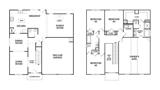
4
2
1
2,720
11614 HATHAWAY DRIVE details
unit-banner-image
unit-banner-image
unit-banner-image
11614 HATHAWAY DRIVE is now sold.
Check out available nearby homes below.