hero-image-0

11580 CREEKSTONE RD

By

Express Homes

   |   

Creekstone

Creekstone
Sold
Sold
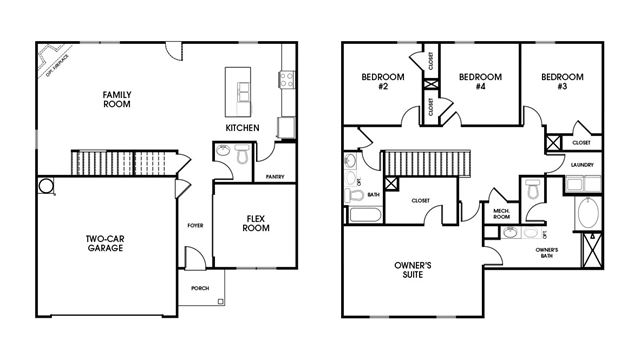
4
2
1
2,338
11580 CREEKSTONE RD details
unit-banner-image
unit-banner-image
unit-banner-image
11580 CREEKSTONE RD is now sold.
Check out available nearby homes below.