





















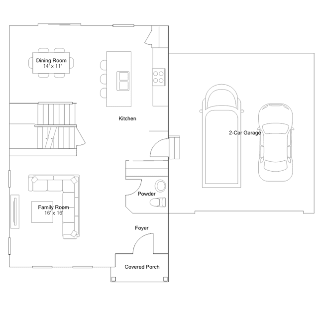
This new two-story home features a fluid, open-plan layout designed to promote low-maintenance living. Immediately upon entry, there is a spacious family room to welcome gatherings and year-round entertainment. Down the hallway is a well-equipped kitchen with direct access to the dining room and backyard. On the top level are all three bedrooms to provide a restful retreat, including the owners suite with a full-sized bathroom. Completing the home is a two-car garage.