






Here is every new GTA low-rise residential development launching in fall 2016
As demand for low-rise homes throughout the Greater Toronto Area remains strong, developers are launching dozens of projects this fall.

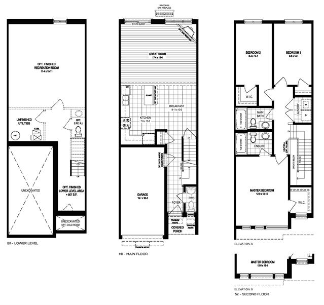
Buzz Talk with Fred Losani, CEO of Losani Homes
Fred Losani developed his first property independently in 1984, and he hasn’t looked back since.