hero-image-0
hero-image-1

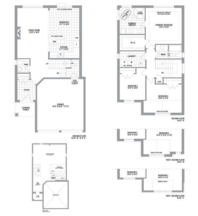
Barolo A Plan

On The Ridge
Sold
Sold
3
2
1
From 1,873
unit-banner-imageunit-banner-imageunit-banner-image
Barolo A Plan details
Barolo A Plan is now sold.
Check out available nearby plans below.

Interested? Receive updates

Stay informed with Livabl updates on new community details and available inventory.