hero-image-0

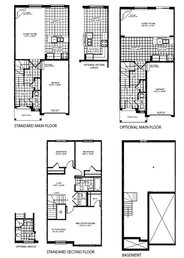
The Wave Plan

Oasis Lakeside Townhomes
Sold
Sold
3
From 1,425
unit-banner-imageunit-banner-imageunit-banner-image
The Wave Plan details
The Wave Plan is now sold.
Check out available nearby plans below.