hero-image-0
hero-image-1
hero-image-2
hero-image-3
hero-image-4

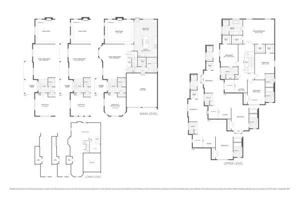
Rosewood 12 Plan

Mountainview Heights
Sold
Sold
4
4
1
From 3,159
unit-banner-imageunit-banner-imageunit-banner-image
Rosewood 12 Plan details
Rosewood 12 Plan is now sold.
Check out available nearby plans below.