FEATURED
Summit Park
Rural Glanbrook, Hamilton
1898 Rymal Road East Townhomes
Electric Ave
Ryckmans, Hamilton
Waterstone
Felker, Hamilton
Mount Hope - Phase 5
Mount Hope, Hamilton
Mount Hope
The Hive
Binbrook, Hamilton
478 and 490 First Road West Townhomes
Stoney Creek Mountain, Hamilton
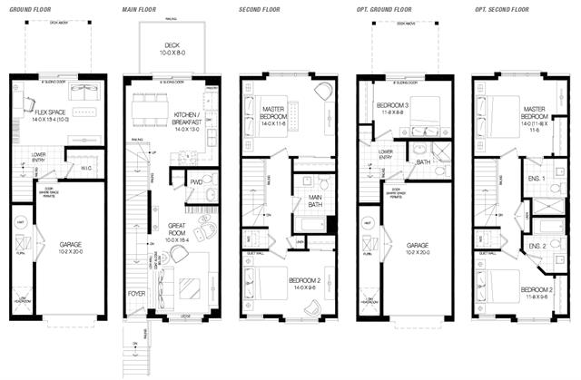
Branthaven’s Freedom townhome community is now open in Stoney Creek
With 12 floorplan designs to choose from, the homes at Freedom are suited for all tastes and lifestyles.