Douglas
Mount Hope - Phase 5
Mount Hope, Hamilton
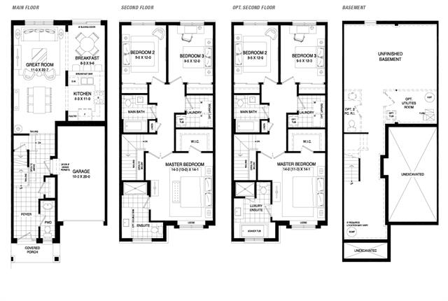
LIAM-END
Mitchell
Douglas (End)
Stinson End
BEAUMONT
James
Lancaster
Branthaven’s Freedom townhome community is now open in Stoney Creek
With 12 floorplan designs to choose from, the homes at Freedom are suited for all tastes and lifestyles.