Fauna - Elev. B
Cachet Binbrook
Rural Glanbrook, Hamilton
Muskoka Collection
Harmony on Twenty - Townhomes
Carpenter, Hamilton
Kawartha Collection
Georgian Collection
Emerald
IMAGINE - City View Estates
Stoney Creek Mountain, Hamilton
Amethyst
-
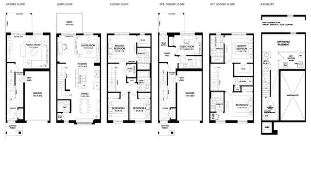
Branthaven’s Freedom townhome community is now open in Stoney Creek
With 12 floorplan designs to choose from, the homes at Freedom are suited for all tastes and lifestyles.