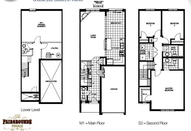
18 CLEAR VALLEY Lane - Unit 59
Highlands of Mount Hope - Phase 1
Mount Hope, Hamilton
16 CLEAR VALLEY Lane - Unit 60
14 CLEAR VALLEY Lane - Unit 61
20 CLEAR VALLEY Lane - Unit 58
10 Clear Valley Lane - Unit 63
4 CLEAR VALLEY Lane - Unit 66
8 Clear Valley Lane - Unit 64
15 RASPBERRY Lane