Sapphire
IMAGINE - City View Estates - Single Family Homes
Stoney Creek Mountain, Hamilton
Alexandrite
-
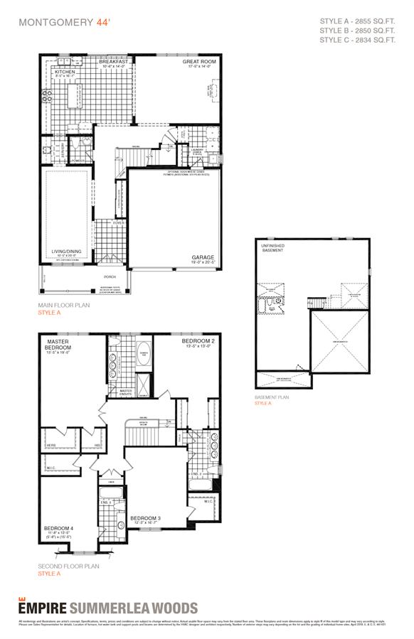
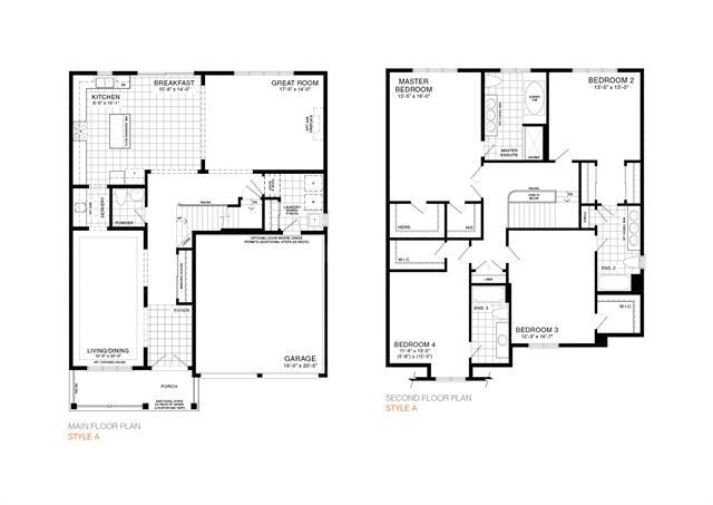
Register now for Empire Summerlea Woods, coming this summer to Binbrook
The development is perfect for those looking to move into an established community surrounded by well-maintained homes, schools, parks and greenspaces.