Alexandrite
IMAGINE - City View Estates
Stoney Creek Mountain, Hamilton
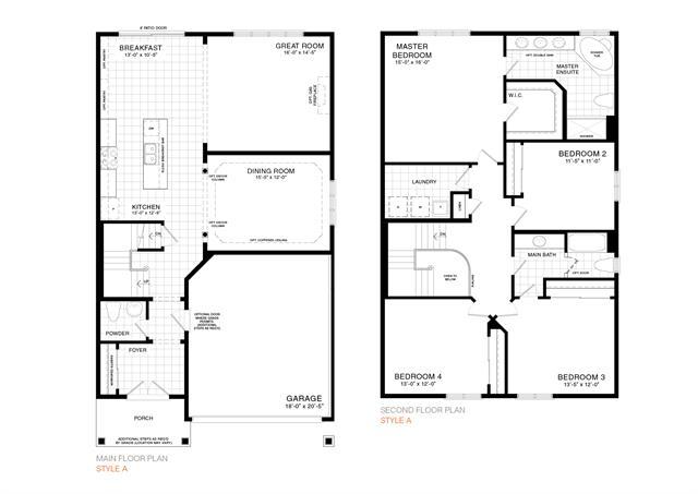
The Capri - Elev. A
Stonegate Park - Single-Family Homes
Ryckmans, Hamilton
IMAGINE - City View Estates - Single Family Homes
The Amalfi - Elev. A
Ruby
Sapphire
-
Register now for Empire Summerlea Woods, coming this summer to Binbrook
The development is perfect for those looking to move into an established community surrounded by well-maintained homes, schools, parks and greenspaces.