






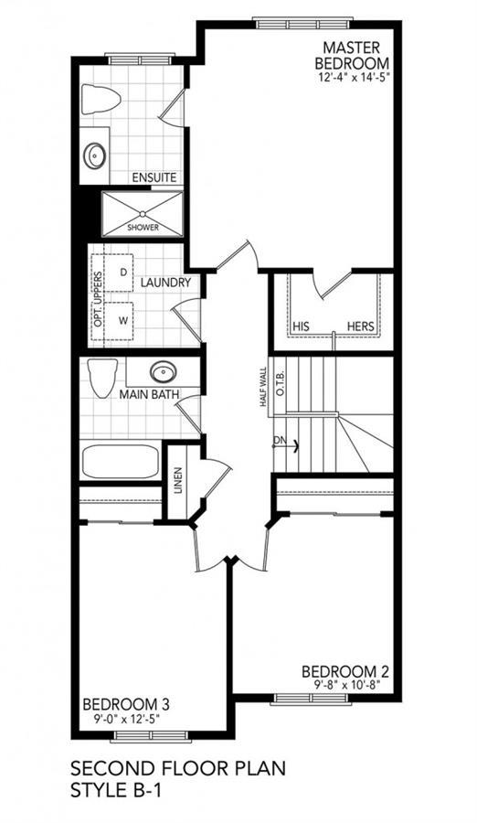
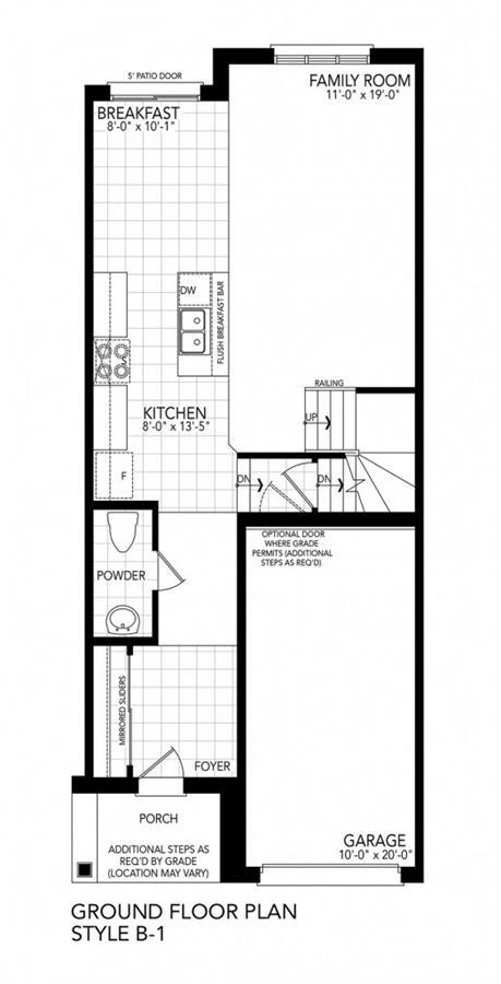
Empire Communities to release a new collection of townhomes this Saturday, July 13th at Empire Lush in Stoney Creek
Architectural details like ornamental trim and exterior corbels add plenty of charm with three new exterior colour schemes that will suit any taste.

Empire Communities partners with Mike Holmes to become the newest member of the HOLMES approved Homes Program
Every HOLMES-approved home in an Empire low-rise community will undergo a series of inspections.