hero-image-0
hero-image-1
hero-image-2

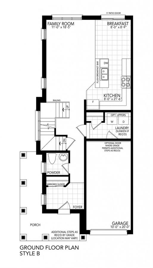
The Chelsea End Plan

By

Empire Homes

   |   

Empire Lush

Empire Lush
Sold
Sold
3
2
1
From 1,611
unit-banner-imageunit-banner-imageunit-banner-image
The Chelsea End Plan details
The Chelsea End Plan is now sold.
Check out available nearby plans below.