hero-image-0
hero-image-1

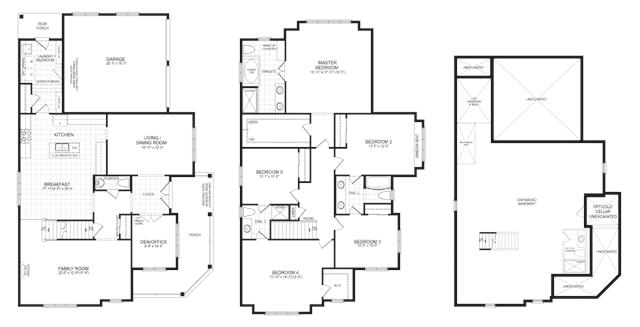
Abbey Corner Plan

By

Empire Homes

   |   

Empire Lush

Empire Lush
Sold
Sold
5
3
1
From 2,991
unit-banner-imageunit-banner-imageunit-banner-image
Abbey Corner Plan details
Abbey Corner Plan is now sold.
Check out available communities below.