hero-image-0
hero-image-1

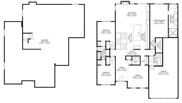
The Titus Plan

Cesar Place
Sold
Sold
3
2
1
unit-banner-imageunit-banner-imageunit-banner-image
The Titus Plan details
The Titus Plan is now sold.
Check out available communities below.