hero-image-0
Bloom Garden Town Collection
Sold
Sold
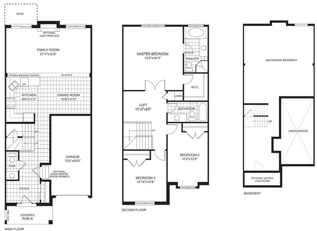
3
2
1
From 1,670
unit-banner-imageunit-banner-imageunit-banner-image
Villa Plan details
Villa Plan is now sold.
Check out available nearby plans below.