hero-image-0
Bloom Garden Town Collection
Sold
Sold
4
2
1
From 1,770
unit-banner-imageunit-banner-imageunit-banner-image
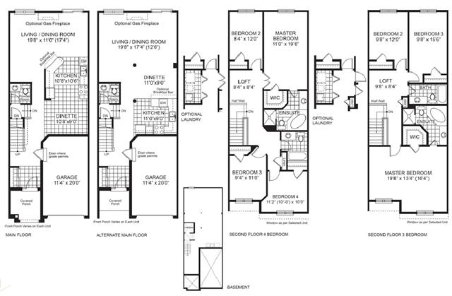
Mansion Plan details
Mansion Plan is now sold.
Check out available nearby plans below.