hero-image-0
Beasley Park Lofts
Sold
Sold
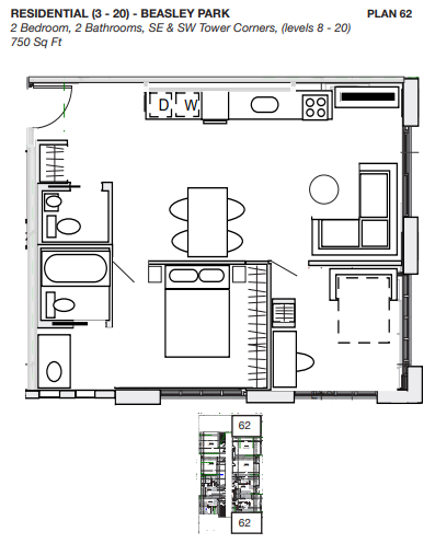
2
1
1
750
Unit 62 details
unit-banner-image
unit-banner-image
unit-banner-image
Unit 62 is now sold.
Check out available nearby condos below.

Interested? Receive updates

Stay informed with Livabl updates on new community details and available inventory.