hero-image-0

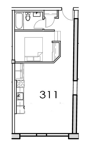
Unit 311

Beasley Park Lofts
Sold
Sold
1
1
625
Unit 311 details
unit-banner-image
unit-banner-image
unit-banner-image
Unit 311 is now sold.
Check out available nearby condos below.

Interested? Receive updates

Stay informed with Livabl updates on new community details and available inventory.