hero-image-0
Beasley Park Lofts
Sold
Sold
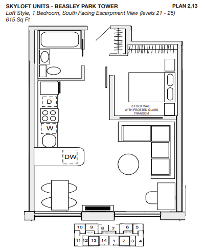
1
1
615
Unit 2 details
unit-banner-image
unit-banner-image
unit-banner-image
Unit 2 is now sold.
Check out available nearby condos below.

Interested? Receive updates

Stay informed with Livabl updates on new community details and available inventory.