hero-image-0
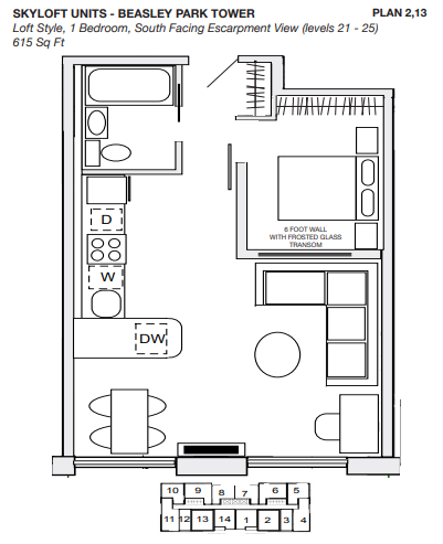
Beasley Park Lofts
Sold
Sold
1
1
615
Unit 13 details
unit-banner-image
unit-banner-image
unit-banner-image
Unit 13 is now sold.
Check out available nearby condos below.

Interested? Receive updates

Stay informed with Livabl updates on new community details and available inventory.