hero-image-0
Beasley Park Lofts
Not Available
Not available
Pricing unavailable
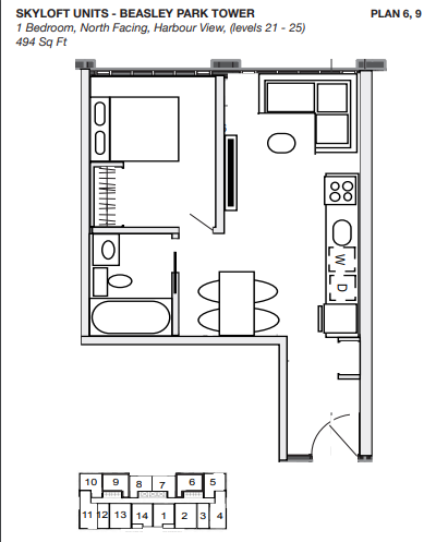
1
1
From 494
unit-banner-imageunit-banner-imageunit-banner-image
Plan 9 details

Contact sales center

Get additional information including price lists and floor plans.

Interested? Receive updates

Stay informed with Livabl updates on new community details and available inventory.