hero-image-0
Beasley Park Lofts
Not Available
Not available
Pricing unavailable
1
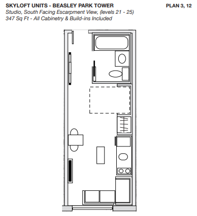
From 347
unit-banner-imageunit-banner-imageunit-banner-image
Plan 12 details

Contact sales center

Get additional information including price lists and floor plans.

Interested? Receive updates

Stay informed with Livabl updates on new community details and available inventory.