hero-image-0
Beasley Park Lofts
Not Available
Not available
From $949,900
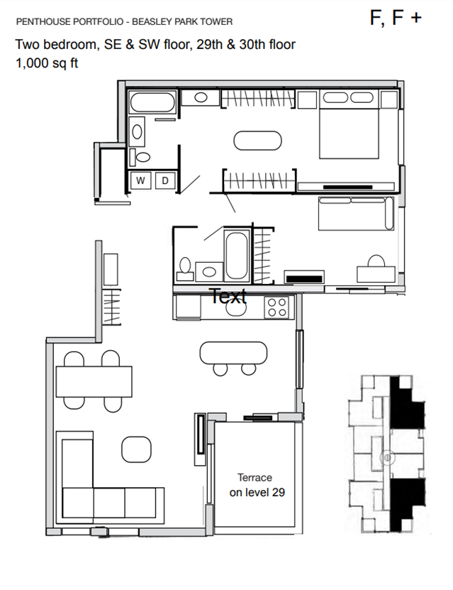
2
2
From 1,000
$950
unit-banner-imageunit-banner-imageunit-banner-image
F+ Plan details

Contact sales center

Get additional information including price lists and floor plans.

Interested? Receive updates

Stay informed with Livabl updates on new community details and available inventory.