hero-image-0
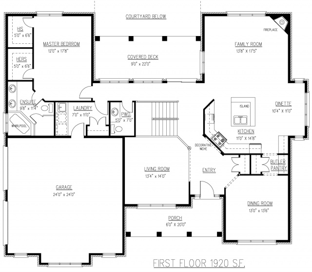
Crewson Ridge
Sold
Sold
3
2,785
Belwood details
unit-banner-image
unit-banner-image
unit-banner-image
Belwood is now sold.
Check out available communities below.