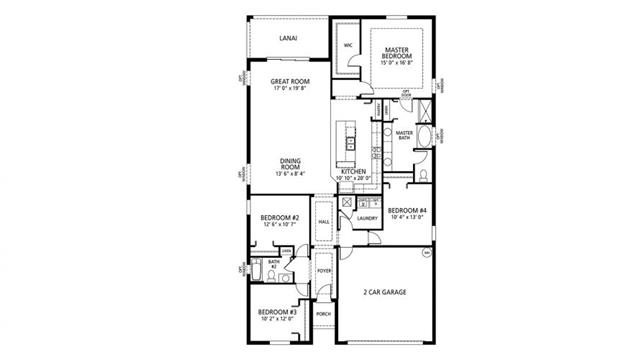
Plan 2766
Cedar Crossings II
Haines City
Azure
Lawson Dunes
Valeria
CALI
Wynnstone
Davenport
Plan 3016
Plan 2566 Modeled
ELSTON II
HARPER