hero-image-0
hero-image-1
hero-image-2

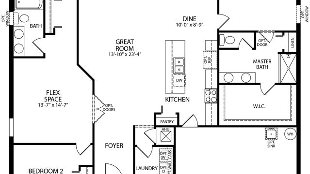
Clearwater Plan

Haines Ridge
Sold
Sold
3
2
From 1,856
Clearwater Plan details
Clearwater Plan is now sold.
Check out available nearby plans below.

Interested? Receive updates

Stay informed with Livabl updates on new community details and available inventory.