

































Get additional information including price lists and floor plans.
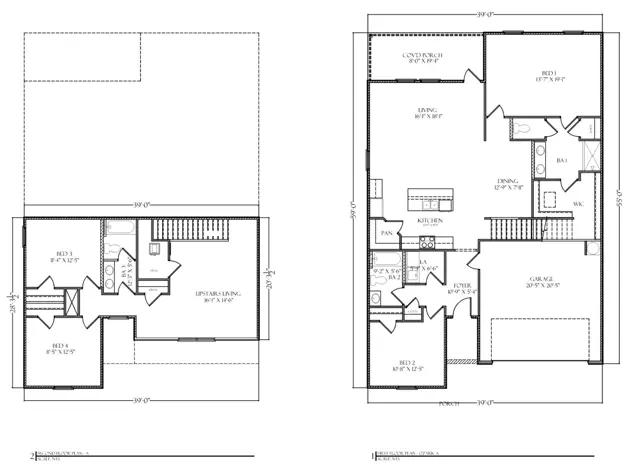
Discover The Ozark in Phillips Place, our new home community in Hahira, GA. This floorplan features 4 bedrooms, 3 bathrooms, and approximately 2,458 square feet. As you enter the home on the first floor, you are met with the foyer featuring a full bathroom and first additional bedroom perfect for guests. Walking past the foyer is a large open concept living space including the kitchen, living room and dining space. The kitchen includes granite countertops, under mount sink, smooth top range, stainless steel appliances, pantry, stylish shaker cabinetry, and a center island. With natural light and nearby covered patio access, the living and dining area are integrated perfectly. Towards the back of the main living space is the primary bedroom. This bedroom is a spacious and relaxing space that includes an attached primary bathroom. The double vanity, separate toile...
Stay informed with Livabl updates on new community details and available inventory.