













































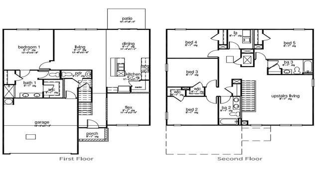
The Elle floorplan at Laurel Grove in Guyton, GA offers everything you needand morefor multigenerational living or growing families seeking space and flexibility. With 5 bedrooms, 3.5 bathrooms, and 2,721 square feet, this two-story home delivers expansive living in one of Effingham Countys most desirable communities. The main floor features a private primary suite with a spacious walk-in closet and en-suite bath, providing convenient single-level living for the homeowner. The open-concept kitchen is equipped with stainless steel appliances, a large island, and a walk-in pantry that flows into the family and dining areasperfect for gathering and entertaining. A powder room and two-car garage round out the first floor. Upstairs, youll find four generously sized bedrooms, two full bathrooms, and a large loft ideal for a media room, study space, or playroom. Whet...
Stay informed with Livabl updates on new community details and available inventory.