






































































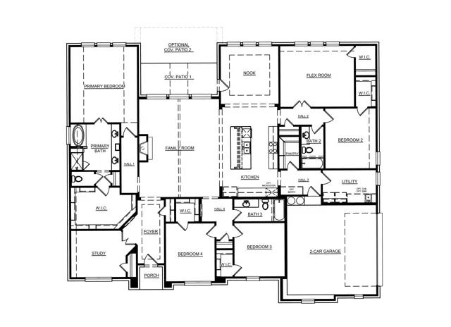
Discover a versatile home with six elevation styles, three featuring stunning stone details. Explore the study or open-concept spaces. The family room, with optional fireplace, is bathed in natural light. Enjoy the designer kitchen with granite countertops and stainless steel appliances. Retreat to the primary suite with luxurious bathroom options. Three bedrooms offer walk-in closets. Personalize with a flex room and options like a three-car garage.