hero-image-0

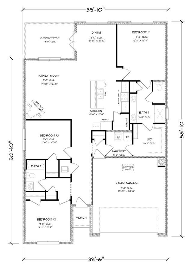
The Bristol Plan

The Village at Craft Farms
Sold
Sold
3
2
From 1,672
The Bristol Plan details
The Bristol Plan is now sold.
Check out available nearby plans below.