









































Get additional information including price lists and floor plans.
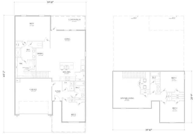
Stop by Raley Farms, our new home community located in Gulf Shores, Alabama, and tour our stunning Ozark floor plan. Just under 2,500 square feet, this beautiful two-story home offers 4-bedrooms, 3-bathrooms, a 2-car garage, and a seamless open layout. As you enter the home on the first floor, you are met with the foyer featuring a full bathroom and first additional bedroom, perfect for guests or a home office. Walking past the foyer is a large open concept living space including the kitchen, living room and dining area. The kitchen includes quartz countertops, an under-mount sink, a smooth top range, stainless steel appliances, a pantry, and a central island. With natural light and nearby covered patio access, the living and dining area are integrated perfectly. Towards the back of the main living space and connected to the living room is the owners suite. Th...
Stay informed with Livabl updates on new community details and available inventory.