hero-image-0

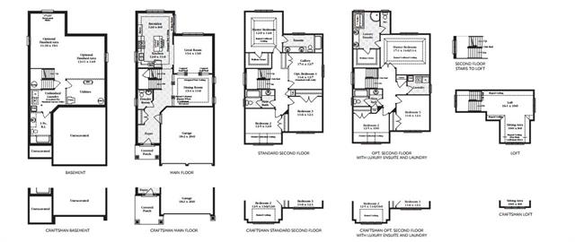
Islington with Loft Masters Plan

Westminster Woods
Sold
Sold
3
2
1
From 2,469
unit-banner-imageunit-banner-imageunit-banner-image
Islington with Loft Masters Plan details
Islington with Loft Masters Plan is now sold.
Check out available nearby plans below.