The Crown
Marquis Modern Towns
Exhibition Park, Guelph
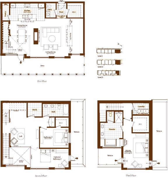
31B - 85 MULLIN DRIVE
Live by the Lake: Condo Towns
Brant, Guelph
The Ruby
The Sapphire
The Silver
27B - 85 MULLIN DRIVE
421
115
Time is running out to get into The Copper Club at The Metalworks in Guelph
Only three condo townhomes remain in The Copper Club, Guelph’s hottest downtown condo by Fusion Homes.