hero-image-0

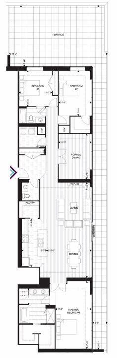
3H Plan

By

Tricar

   |   

Gordon Square

Gordon Square
Sold
Sold
3
2
1
From 2,317
unit-banner-imageunit-banner-imageunit-banner-image
3H Plan details
3H Plan is now sold.
Check out available communities below.