












































































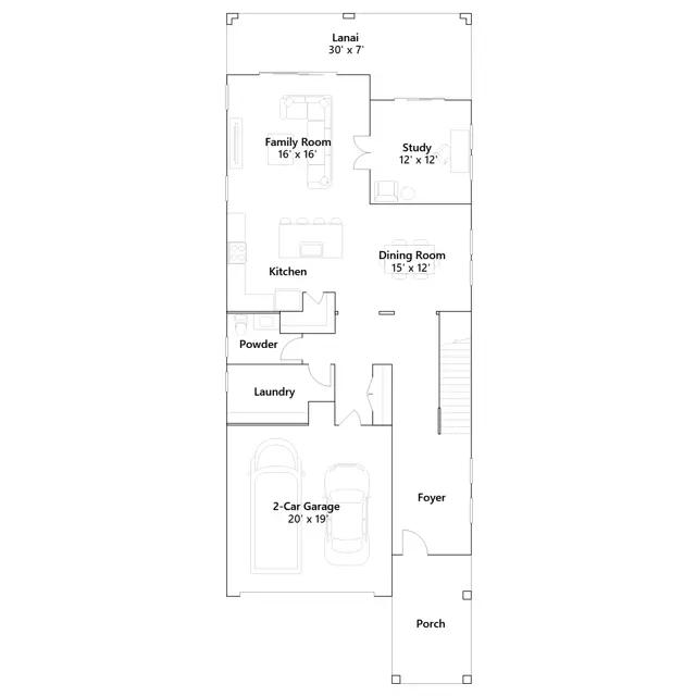
This new two-story home offers ample space to live and grow. The first floor is host to an inviting open-concept layout with easy access to a spacious lanai, perfect for everyday entertaining, multitasking and more, and a secluded study is tucked away at the back of the home for work-from-home days. All three bedrooms are located on the second floor to maximize comfort and privacy, including a lavish owners suite with a full bathroom and walk-in closet, just steps from a versatile loft.
Stay informed with Livabl updates on new community details and available inventory.