













































Get additional information including price lists and floor plans.
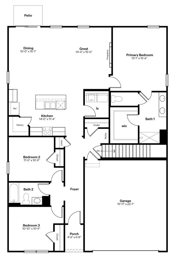
Welcome home to the Neuville floor plan at Sunset Meadows in Gretna, Ne. This 3-bedroom, 2-bathroom ranch offers 1,635 sq. ft. of thoughtfully designed living space with an open-concept kitchen overlooking the living and dining areas and back patio. Making your way into the heart of the home, the living room features an electric fireplace and large windows that fill the home with natural light. The kitchen flows seamlessly from the living room which includes, white cabinetry, quartz countertops, stainless steel appliances, a large island, and a corner pantry for ample storage. Sliding glass doors open to the back patio/deck, making entertaining easy. The primary suite at the rear of the home offers a private bathroom with double vanity and walk-in closet, while two additional bedrooms share a second bathroom at the front of the home. Carpeted floors and sizab...
Stay informed with Livabl updates on new community details and available inventory.