






















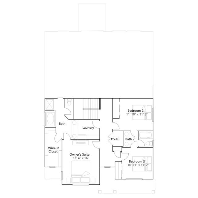
This two-story home features Lennars signature Next Gen suite ideal for multigenerational households. The attached suite includes a convenient separate entry, living space, bedroom, bathroom and laundry. In the main home, an open floorplan promotes seamless flow between the Great Room, kitchen and dining room on the first level, with sliding glass doors that lead to the patio. Three bedrooms, including the owners suite with an attached private bathroom and walk-in closet, are found upstairs.