








































Images coming soon
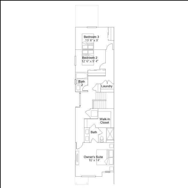
This spacious and modern two-story home is ready for the way people live today. On the first floor, an open-concept living area combines the kitchen, living and dining areas, with a nearby patio providing convenient indoor-outdoor transitions. Three bedrooms are located on the second floor, including the luxe owners suite with a spa-inspired bathroom and walk-in closet.
Stay informed with Livabl updates on new community details and available inventory.