









































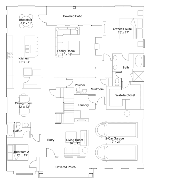
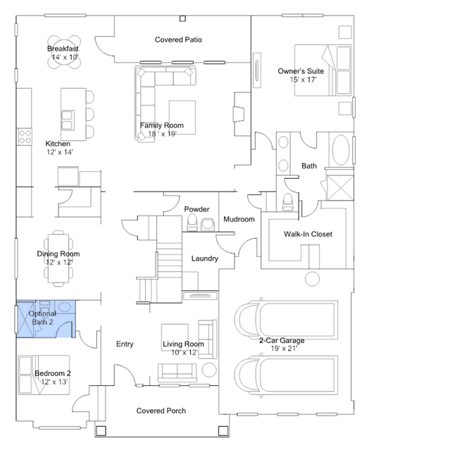
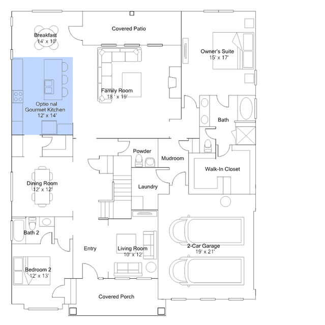
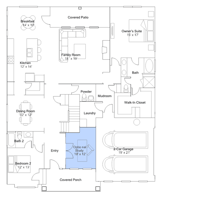
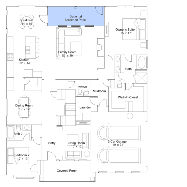
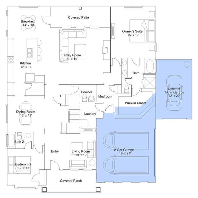
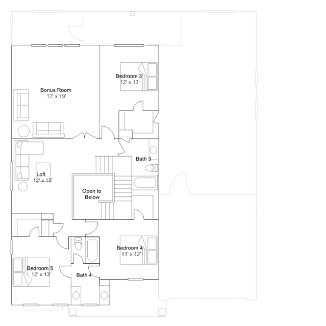
This new two-story home provides ample space for the whole family to thrive. The first floor features an open design among the family room, kitchen and breakfast room, plus a formal living and dining room, a covered patio, a luxe owners suite and a secondary bedroom. The second floor hosts three secondary bedrooms with walk-in closets and a loft and a bonus room that add shared-living space.