
























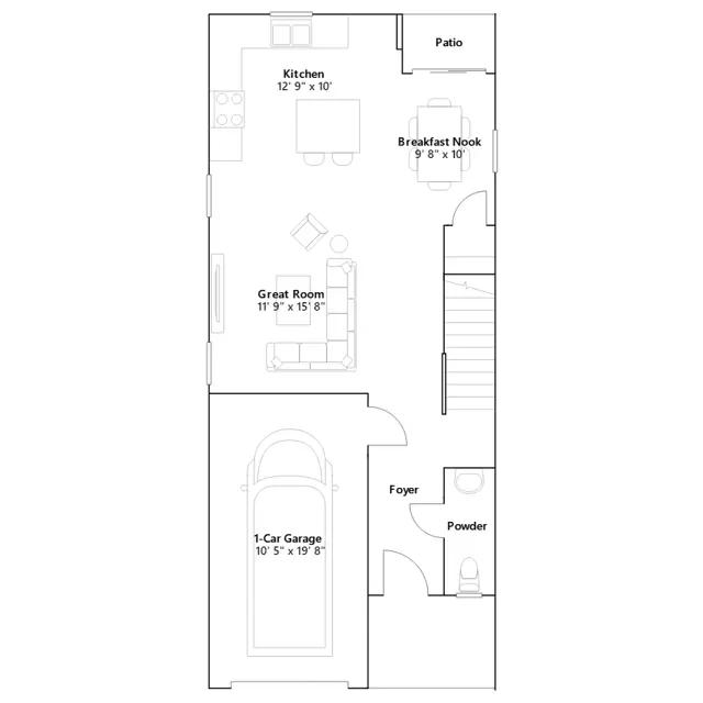
The first level of this two-story townhome is host to a spacious open floorplan shared between the kitchen, Great Room and breakfast nook. Access to a patio makes indoor-outdoor living and entertaining simple. All three bedrooms are found upstairs, including the luxe owners suite which features an en-suite bathroom and walk-in closet.
Stay informed with Livabl updates on new community details and available inventory.