hero-image-0
hero-image-1
hero-image-2

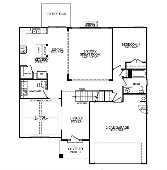
Buchanan Plan

By

D.R. Horton

   |   

Hartwood Lake

Hartwood Lake
Sold
Sold
3
3
From 2,654
unit-banner-imageunit-banner-imageunit-banner-image
Buchanan Plan details
Buchanan Plan is now sold.
Check out available nearby plans below.