








































































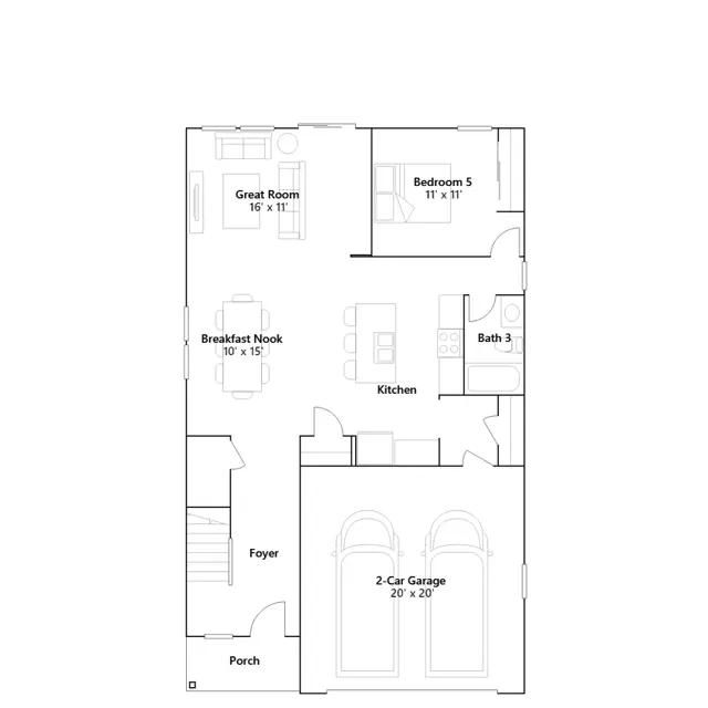
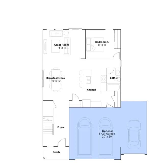
The first level of this two-story home is host to the Great Room, kitchen and breakfast nook, which conveniently share an open floorplan to promote simplified living. In a private corner is a versatile bedroom well-suited as a designated guest room. A bonus room and the remaining four bedrooms occupy the second floor, including the serene owners suite with an attached bathroom and walk-in closet.
Stay informed with Livabl updates on new community details and available inventory.