





























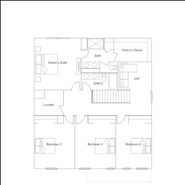
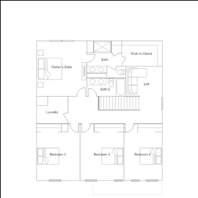
This first level of this two-story home offers a flex room as an ideal space for overnight stays. The Great Room, kitchen and dining room can also be found on the first floor, arranged in an expansive floorplan. Upstairs, all four bedrooms await, plus a loft offering additional living space for the entire family.
Stay informed with Livabl updates on new community details and available inventory.