












































































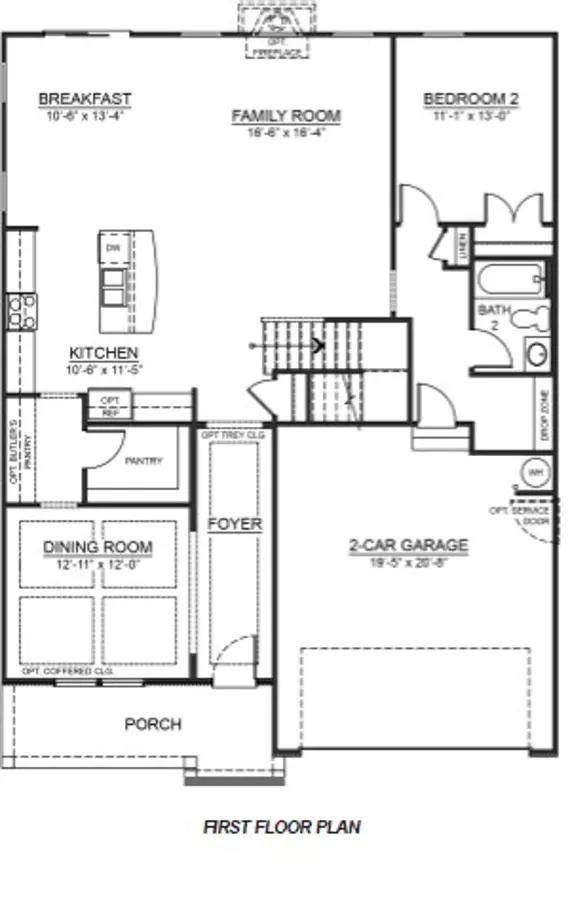
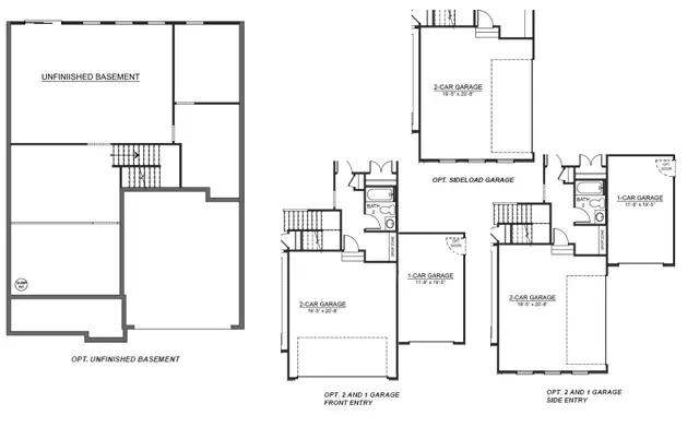
The Hampshire is a two-story plan featured at Adams Glen in Mauldin, South Carolina offering 4 beautiful elevations. The Hampshire offers four bedrooms, three bathrooms and a two-car garage. Step inside to discover an expansive living space that caters to the needs of modern living. The heart of this home is the gourmet kitchen, it features high-end stainless-steel appliances, elegant granite countertops with tile backsplash, a center island, and abundant storage space. Escape to the primary suite, a spacious sanctuary completed with a comfortable bedroom area, en-suite bathroom with a soaking tub, a separate shower, and dual vanity. It also includes a walk-in closet and a sitting room. In addition to the primary suite, the Hampshire offers multiple bedrooms, ensuring privacy and comfort for every member of the household. Flex rooms can be customized to fit your...
Stay informed with Livabl updates on new community details and available inventory.