






























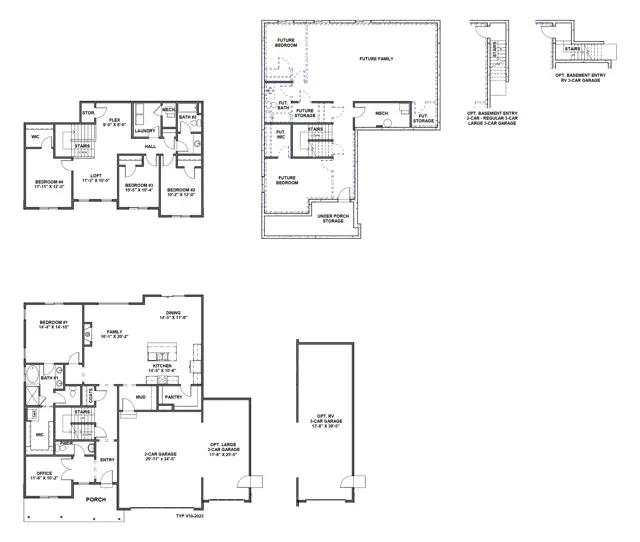
Youll never run low on space or style in the Sydney, a gorgeous two-story floorplan in our Cherry Wood community in Grantsville, Utah. The generous space doesnt stop at the four comfortable bedrooms, flex areas, or the expansive pantry; but continues with the plumbed unfinished basement of potential customized living space. Two classic exterior options and premium finishes throughout make the Sydney a true head-turner. Past a charming front porch, youll enter an open-to-below foyer. Next to is a bright and spacious office behind French doors. Down the hallway is an expansive living space where you can showcase your style with help from timeless premium design features like recessed ceiling and lighting, premium laminate flooring, pendant lighting, and a cozy gas fireplace. Shaker cabinets, quartz countertops, and stainless-steel appliances in the chefs kitchen ...
Stay informed with Livabl updates on new community details and available inventory.